Fairbanks International Airport
Fairbanks International Airport (IATA: FAI, ICAO: PAFA) — гражданский аэропорт, расположенный в 5 км к юго-западу от центрального делового района города Фэрбенкс (Аляска).
Международный аэропорт Фэрбенкс обслуживает ограниченное число пассажирских рейсов, включая рейсы авиакомпаний Era Aviation, Alaska Airlines круглый год и рейсы Condor Airlines во Франкфурт в летнее время.
|
Адрес аэропорта: 6450 Airport Way,
Fairbanks, Alaska
|
|
Справочная:
Тел: +1 (907) 474-2500
Бюро находок:
Tel: +1 (907) 474-2530
Официальный сайт аэропорта: http://www.dot.state.ak.us/faiiap/index.shtml
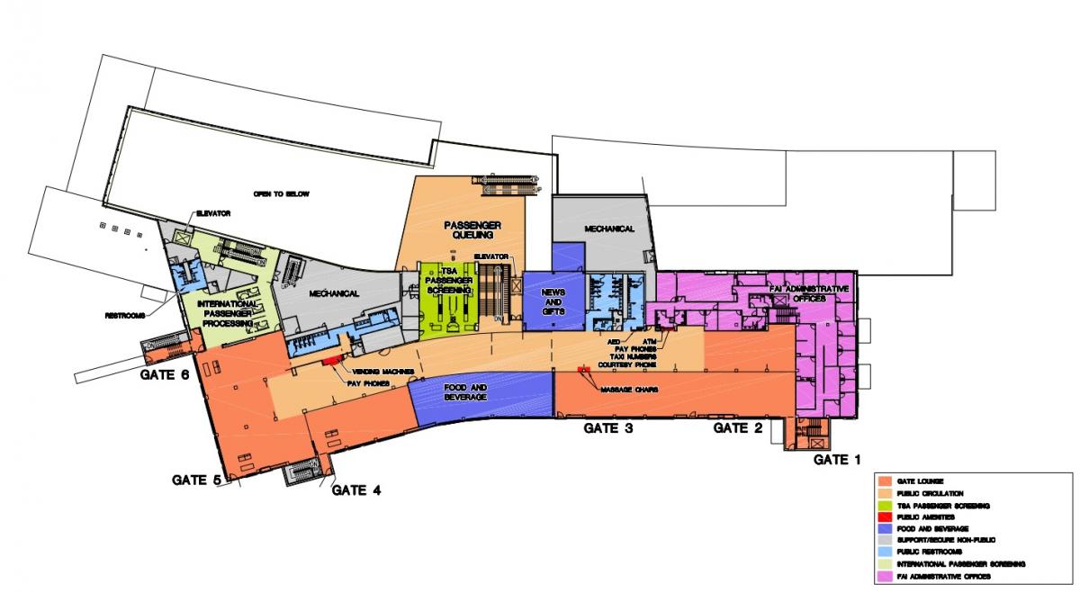
| План первого этажа | ![]() |
| План второго этажа | ![]() |
Расположение:
Javascript is required to view this map.


